05.18Mon/月

LOCARI(ロカリ)

リビングを広く見せる「50㎡のマンション」リノベアイデア集

新築マンションの価格高騰もあり、中古マンションを自分好みにリノベーションすることも一般的になってきました。なかでも最も多いリクエストが「リビングをできる限り広く取りたい」というもの。約50㎡前後の狭めの物件を中心に、広く見せる手法を聞いてきました。

都市部では、夫婦のみ、家族3人など少人数の世帯が増えていることもあり、50㎡前後の中古マンションもなかなか人気が高いそう。「住む人数が少なければ、その分個別の部屋を確保する必要はありません。そのためかリビングをできるだけ広くして、寝室やお風呂場など、その他のスペースは極力狭くしたいという要望が多くみられます」(グローバルベイス株式会社広報企画室 瀧本裕子さん・以下同)。確かに1日の大半を過ごすリビングが心地よければ、その他の空間はそれほどスペースはいらないかもしれませんね。

◆アイデア①◆ 室内窓で“抜け”を作って リビングを広く開放的に見せる

picture

リノベ前は3部屋に分かれていた床面積47.98㎡の目黒の物件。これを約12帖のリビングダイニングキッチンと約6帖の洋室に変更しました。広く見せるポイントとなるのが、手前のリビングダイニングキッチンと奥の洋室を仕切る、ガラスの引き戸です。「最近のトレンドとして、室内にガラスの建具を使って室内窓を作る傾向があります。このお宅は、リビングとその他の部屋を壁やドアでがっちり仕切る代わりに、ガラス素材の引き戸を採用し、さりげなく部屋を区分。抜け感を作ったことで広く見えます」。ガラスの建具の枠にはモダンな雰囲気が演出できるアイアン素材を採用。リビングと洋室をメンズライクなテンションで統一しているため、引き戸を開放すればひとつの空間として利用することも可能。来客が来たときもこの開放感なら窮屈さはありません。

・気になる間取りもチェック!

picture

◆アイデア②◆ 壁面に設置したキッチンから つり戸棚をなくすことで圧迫感を解消

picture

三軒茶屋にあるこの物件は、延べ床面積31㎡。以前は和室2間と洋室があったスペースを、大胆にリビングダイニングキッチンにリフォームしました。「料理中リビングにいる人と会話が楽しめるアイランドキッチン(対面型キッチン)は今も人気ですが、スペースが限られてるお宅には壁に設置するタイプをおすすめしています」。加えてキッチンにつり戸棚をあえて設置しないことで、よりすっきりとした印象に仕上げました。このキッチンは色を黒で統一したことも広く感じさせるポイント。「部屋の突き当たりにアクセントカラーをもってくると自然と視線がそちらに行き、結果的に奥行き感を出すことができるんです」。キッチン上にはダウンライトを設置。頭上をさえぎるものがないのですっきりとした印象です。突き当たりの壁面にアクセントとなる色を使うテクニックは、大掛かりなリノベーションじゃなくても、アクセントクロスを使うことでDIYでもトライできそうなアイデアです。

・気になる間取りもチェック!

picture

◆アイデア③◆ リビングの広さを追求するなら 寝室やその他の空間を超ミニマムに

あれもこれもとこだわりだしたら、全て中途半端になりがち。こだわる部分を決めることが、狭い物件を快適に作るポイントなのかもしれません。例えば、他の部分は犠牲にしても「広々としたリビング」にこだわることで成功したリノベ例を2件。

✔ 寝室はあえて設けないというのも手

picture

先ほど紹介した三軒茶屋の物件のリビングダイニングキッチンを別方向から撮影した写真。ソファの後ろにベッドがあるのが分かりますか? ソファの背もたれを仕切り代わりに利用して、その後ろをちょっとした寝室スペースに見立てています。

✔ 寝室は2.6帖という極狭スペース。
その分を使ってリビングの広さを確保

picture

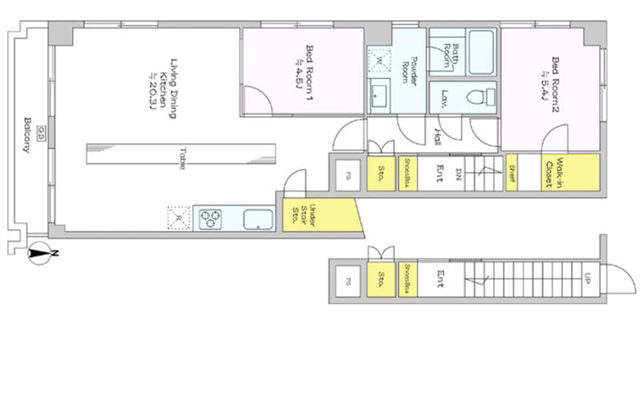
新宿にある床面積48.36㎡の物件。「とにかくリビングダイニングを広く使いたい、水回りを広くして生活にゆとりを出したい」との施主からの要望で、なんと寝室は2.6帖。その分、メインとなるリビングダイニングには、念願だったカウンターキッチンをゆったり設置することができたそう。

・気になる間取りもチェック!

picture

◆アイデア④◆ 縦のラインを強調することで 視覚的に広さを生み出す

picture

50㎡以下の物件ではありませんが、リビングを広く見せるアイデアが詰まった67.95㎡の中野区のひと部屋。

白で統一されたリビングは、天井とダイニングの天然木がアクセントになっています。床や壁に白の分量を多く取り入れることで明るく開放的な印象に仕上がります。狭い部屋を広く見せたいときは、ぜひ意識して取り入れてください。さらに見逃せないテクニックが、ラインの強調。細長いテーブルやペンダントライトの配置、天井板までが玄関に向かって一直線に伸びています。「縦ラインを意識すると空間に奥行きが出て、広々と見えますよ」。視覚を利用して広く見せる方法は比較的手軽にできそう。ぜひ真似してみたいですね。

・気になる間取りもチェック!

picture

自宅に家族がいる時間が増えて、もっと広いリビングだったら…と思っているみなさん。大掛かりなリノベーションをしなくても、突き当たりにアクセントクロスをあしらったり、縦ラインを意識したインテリアの配置を考えたり、視覚から広さを感じさせる工夫ならすぐに取り入れられますね。ぜひ参考にしてください。

(写真提供:グローバルベイス)

この記事のライター